3 Springfield, Norland £295,000
Please enter your starting address in the form input below.
Please refresh the page if trying an alernate address.
- STONE-BUILT COTTAGE WITH FAR REACHING VIEWS
- BEAUTIFULLY MODERNISED THROUGHOUT
- OPEN KITCHEN DINING ROOM
- TWO FIRST FLOOR DOUBLE BEDROOMS & BATHROOM
- LOFT ROOM WITH EN-SUITE
- LOWER GROUND FLOOR SITTING ROOM & HOME OFFICE
- OFF ROAD PARKING FOR TWO CARS
- FRONT GARDEN & REAR BALCONY
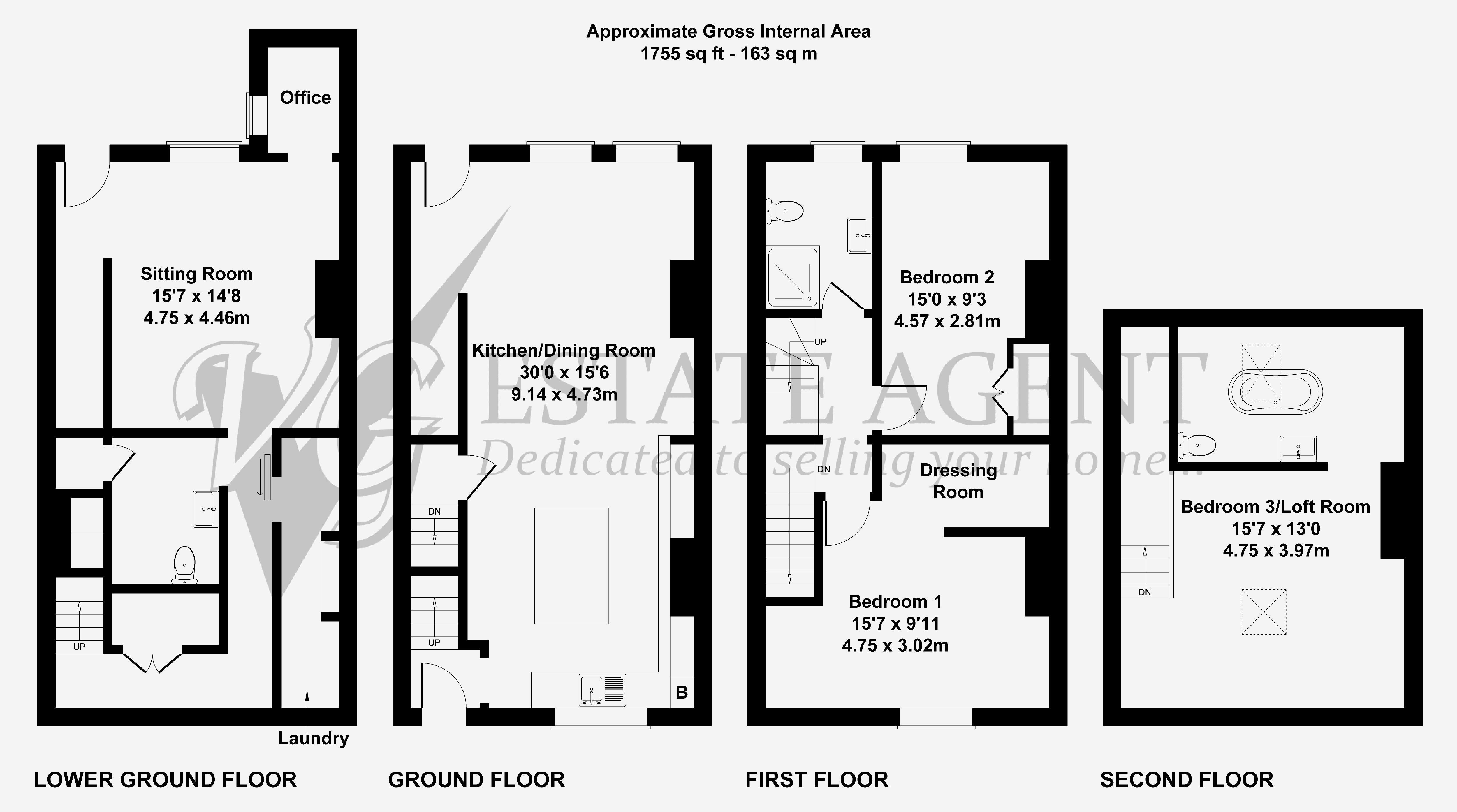
Nestled along a peaceful country lane, this charming stone-built cottage has been thoughtfully renovated to an exceptional standard, creating a superb family home. Offering over 1,750 sq ft of beautifully presented living space, the property enjoys wonderful views from every room and impressive ceiling heights throughout, enhancing the sense of light and space.
The accommodation is arranged across four floors. The ground floor features a spacious and light-filled open-plan kitchen and dining area, ideal for both everyday living and entertaining. On the lower ground floor, you’ll find a cosy sitting room, a home office, a utility room and a cloakroom.
The first floor offers two generous double bedrooms, served by a stylish three-piece shower room, while the third-floor loft room benefits from its own ensuite bathroom, providing flexible additional living or guest space.
Externally, there is a garden to the front and two balcony-style walkways to the rear, enjoying attractive views over Sowerby Bridge and the surrounding countryside.
Sitting Room
Office
Laundry
Cloakroom
GROUND FLOOR
Entrance Hall
Kitchen
Dining Room
FIRST FLOOR
Bedroom 1
Bedroom 2
House Shower Room
SECOND FLOOR
Loft Room
Ensuite
On the lower ground floor is a cosy yet stylish sitting room, featuring a beautiful stone fireplace with inset stove which adds warmth and character. French doors and generous glazing maintain a bright and airy feel. This level also incorporates a dedicated home office, utility room and cloakroom, offering practical and flexible living space.
The first floor hosts two generously sized double bedrooms, each tastefully decorated and enjoying elevated outlooks. These are complemented by a stylish three-piece shower room finished to a high standard.
To the third floor is a superb loft room with its own ensuite bathroom, providing excellent versatility as a guest suite, additional bedroom or private retreat, while continuing the theme of light-filled interiors and attractive views.
EXTERNAL
Externally, the property benefits from a garden to the front and two balcony-style walkways to the rear. Both outdoor areas enjoy delightful views over Sowerby Bridge and the surrounding countryside, offering attractive spaces to relax and take in the setting.
LOCATION
Springfield is conveniently located within walking distance of Sowerby Bridge and its excellent amenities including a mainline railway station, supermarket, doctors, dentist and vets practices, and a selection of shops, pubs and restaurants. There is quick and easy access to the M62 (J22 & J24), which is within a 15 minute drive.
SERVICES
All mains services. Gas central heating with boiler located in the kitchen. UPVC double glazing with stained glass feature panels.
TENURE
Freehold.
DIRECTIONS
From Ripponden take the A58 Halifax Road towards Sowerby Bridge and just after passing the petrol station before reaching the town, turn right into Watson Mill Lane. Proceed uphill into Sowerby Croft Lane and take the 1st turning right into Long Lane. The property can be found on the right hand side identified by our sale board.
IMPORTANT NOTICE
These particulars are produced in good faith, but are intended to be a general guide only and do not constitute any part of an offer or contract. No person in the employment of VG Estate Agent has any authority to make any representation of warranty whatsoever in relation to the property. Photographs are reproduced for general information only and do not imply that any item is included for sale with the property. All measurements are approximate. Sketch plan not to scale and for identification only. The placement and size of all walls, doors, windows, staircases and fixtures are only approximate and cannot be relied upon as anything other than an illustration for guidance purposes only.
MONEY LAUNDERING REGULATIONS
In order to comply with the ‘Money Laundering, Terrorist Financing and Transfer of Funds (Information on the Payer) Regulations 2017’, intending purchasers will be asked to produce identification documentation and we would ask for your co-operation in order that there will be no delay in agreeing the sale.
Norland HX6 3PZ
Entrance Vestibule
Kitchen Dining Room
30' 0'' x 15' 6'' (9.14m x 4.73m)
Lower Ground Floor
Sitting Room
15' 7'' x 14' 8'' (4.75m x 4.46m)
First Floor Landing
Bedroom 1
15' 9'' x 14' 10'' (4.80m x 4.52m)
Bedroom 2
15' 0'' x 9' 3'' (4.57m x 2.82m)
Bathroom
Attic
21' 6'' x 15' 1'' (6.55m x 4.59m)
Loft Room
15' 7'' x 13' 0'' (4.75m x 3.97m)
Cloakroom
Office
Laundry
Ensuite
Norland HX6 3PZ
Click to enlarge
| Name | Location | Type | Distance |
|---|---|---|---|






